Để đáp ứng đúng đủ nhu cầu sinh hoạt của gia đình là 3 phòng ngủ mà tiết kiệm chi phí nhất, chúng tôi xin tư vấn như sau

Mặt tiền ngôi nhà ống 1 tầng có gác lửng
Với chi phí 300 triệu để xây một ngôi nhà đó là một con số lý tưởng mà chắc rằng ai cũng có thể làm được, nhưng thực tế là vậy không cao sang hay tiền tỷ gì chủ nhà đã hoàn thành ngôi nhà của mình theo phong cách hiện đại với mức giá 300 triệu.
Nhà gồm 2 phòng ngủ, 1 phòng ăn, 1 phòng khách thiết kế với ánh sáng tự nhiên chan hòa khắp ngôi nhà.
Mẫu nhà ống đẹp này cũng được thiết kế thêm gác lửng với diện tích 12.7 x 14 m, mặt bằng tầng 1 được thiết kế với phòng khách, phòng ăn + bếp chung, 2 phòng ngủ, 2 phòng vệ sinh trong đó 1 phòng vệ sinh chung và 1 phòng vệ sinh dùng trong phòng ngủ bố mẹ.

Mặt bằng tầng 1 của ngôi nhà
Gara xe cũng được thiết kế ngay trong nhà ngay cạnh phòng khách. Gác xép được thiết kế với 1 phòng ngủ nhỏ và 1 phòng thờ.

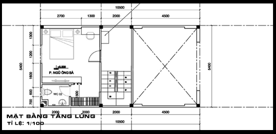
Mặt bằng tầng lửng có một phòng ngủ và 1 nhà vệ sinh. Ảnh: maunhadepmoi.com
Khi thiết kế nhà ống 1 tầng có gác lửng hiện đại, cầu thang luôn được coi là quan trọng. Để tăng cường sự lưu thông các luồng khí chúng tôi đã khéo léo bố trí một cầu thang khá rộng rãi lên gác lửng tại vị trí thông thoáng.
Vì cầu thang là phương tiện “dẫn khí” tốt nhất từ tầng này lên tầng kia. Nếu không gian cầu thanh tối và thấp thì các luồng khí di chuyển trong nhà sẽ dễ bị chặn lại, làm cho “khí trệ” không thoát, ảnh hưởng đến sức khỏe và tinh thần của các thành viên trong gia đình. Bên cạnh đó yếu tố mỹ học trong bố trí nội thất cầu thang khi đặt một chậu cảnh hay bình hoa tươi gần cầu thang cho kiến trúc thiết kế nhà gác lửng đẹp là cần thiết để giúp gia tăng lưu thông khí.
Hình ảnh 3D cho ngôi nhà

Mẫu nhà thứ 2 xây thêm cổng. Ảnh: khonggiandepxinh.blogspot.com

Bước vào nhà là phòng khách với nội thật sang trọng

Phòng bếp sẽ được thiết kế để không ảnh hưởng mùi đến phòng khách. Ảnh: www.khonggiandep.com.vn

Mô tả ảnh.
Đối với 2 phòng ngủ sẽ được thiết kế thêm một khu vườn nhỏ ở phía góc nahf đẻ đưa gió và ánh sáng thiên nhiên vào, đảm bảo sự thoáng đãng cần thiết. Chiều dài của khu vườn là chiều rộng của một phòng ngủ với cửa mở ra vườn. Phòng ngủ còn lại tuy tiếp xúc với vườn sau ít nhưng được thiết kế sát với sân vườn ở giữa nhà nên vẫn đảm bảo được ánh sáng và sự thông thoáng cần thiết.

Ánh sáng tự nhiên vào căn phòng là khá nhiều. Ảnh: www.dhxd.edu.vn
.jpg)
Phòng vệ sinh. Ảnh: caobangedu.vn

Khu vực tiểu cảnh giữa 2 phòng dưới tầng 1.
Không có nhận xét nào:
Đăng nhận xét